2006年8月24日 星期四

<li> 水 電 配 製 圖 </li>





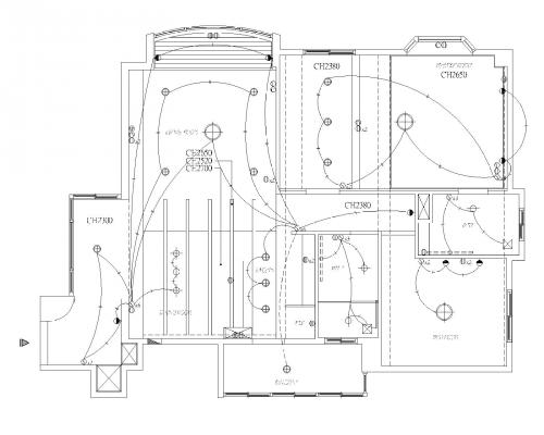
剛收到的水電配製圖 看起來很不賴

控制客廳的燈及壁燈的開關

分別在餐廳跟房間外的走道都有

主臥的燈也是分別牽在門邊及床頭邊

這樣都不用起來開燈 夠懶了 讚 !



水電後天星期六就進去拉線了

下星期一要拆了 星期二室內消毒

快快快  快點開工 快點開工



再補上幾個問題

我工作室 插座要設在哪裡

這點設計師也還沒跟我溝通

插座我希望大都設在下方 避免上面一堆線

不過工作室有些地方的插座又必須在上方

這點設計師都沒和我溝通 我有點擔心到時我會用起來不方便

我會幫客人吹髮型 所以插座的位置對我就很重要了

將來每個房間 是否都有幫我牽電話線 客廳及每個房間都要可以上網

設計師要幫我多想一點 怎樣我工作會最好用

必免我以後的麻煩啦 拜託幫我費心點了






8 則留言:

ivygirl57 提到...

好專業的圖~<br />
想到我們裝潢時那個兩光水電~<br />
就..恨啊!!~@@"<br />
<br />

anniemakeup 提到...

ivy<br />
對阿 找專業的還是比較好<br />
因為我有新娘過去也是直接找工班<br />
也是出了一堆問題 把她搞瘋了<br />
有設計師真的比較好

pinkey0303 提到...

真不賴!<br />
期待快點動工<br />
快點弄好啦~

anniemakeup 提到...

pinkey<br />
對阿 很慢ㄝ 一直沒動工 快沒耐性了<br />
快快快 快快快

jor 提到...

好多線看不懂<br />
是我太笨了嗎 ?<br />

anniemakeup 提到...

jor<br />
對阿 因為妳笨啊 哈哈哈<br />
快跑 ...

elegantyasha 提到...

小姐,<br />
有沒有將妳的問題和小張說啦!<br />
這個很重要,<br />
我們家那隻很在意插座位置,<br />
等我們的圖出來後,<br />
也要好好和他說!!<br />
<br />
亞夏 <br />

anniemakeup 提到...

亞夏<br />
我是今天親自去現場跟黑九說的 <br />
因為工程都是他在負責<br />
妳跟小張說也是可以的 <br />
小張跟黑九都是很實在的人<br />
在報價後 更是這樣覺得 這點馬爺很滿意<br />
妳是做簡約風那是他們很在行的<br />
我是做鄉村對他們就很是挑戰<br />

張貼留言